北角健康東街39號,柯達大廈二期。
在這裏,不僅有匆忙的腳步和緊湊的節奏,更有窗外的一片蔚藍,和靈感的悄然迸發。
誠摯邀請您解鎖全新的辦公體驗,讓每一個工作日都充滿期待。
北角C位,通勤無壓力
傲踞北角核心地段,步行即達鰂魚涌地鐵站。
告別通勤焦慮,每天從容開啟高效工作日 。
好的環境能孕育出更好的創意。
部分單位坐擁無敵海景,窗外海天相接,光線充足。
工作間隙抬眼眺望,視野開闊,心境也隨之打開。
多元空間,適配每一種精彩
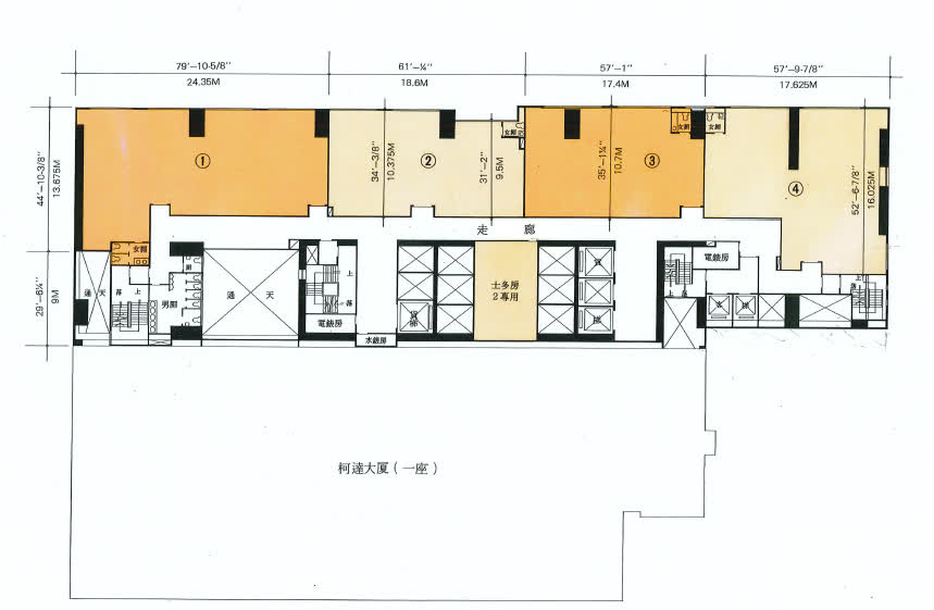
2樓 整層出租
建築面積:14,493呎
超大空間,任君規劃。
滿足您對辦公空間的所有想像 。
價格:HKD13/呎/月(可議價)
(差餉管理費:約HKD2.6/呎/月)
3樓 301室至304室(部分)
建築面積:7,200呎
大面積支持靈活分割,適配多元辦公場景。
價格:HKD13/呎/月(可議價)
(差餉管理費:約HKD2.6/呎/月)
13樓 1308室
建築面積:4,383呎
高性價比之選。
基礎裝修,預留隔斷。
分區合理,專注高效。
價格:HKD15/呎/月(可議價)
(差餉管理費:約HKD2.6/呎/月)
歡迎隨時預約,實地品鑒。
請聯繫:2873 8052
聯繫人:趙小姐
編輯:Fay
關鍵詞:北角柯達大廈招租
評論
查看更多評論>>
加載中……
